Pracownia Projektowa
Projekty
Kontakt
PROJEKTY
ARCHITEKTURA
ELEWACJA DOMKU JEDNORODZINNEGO
DOM NA ZBOCZU WYSPA ITAKA
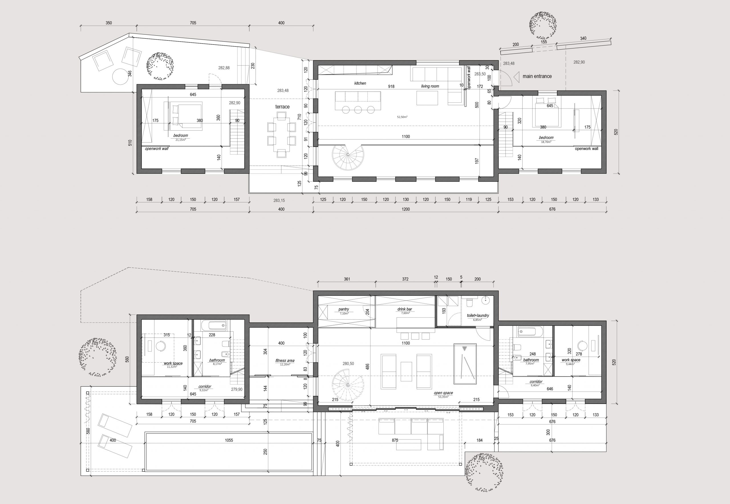
DOMEK JEDNORODZINNY_KARCZOWISKA
KONCEPCJA DOMU W STYLU NOWOCZESNYM
KONCEPCJA DOMU JEDNORODZINNEGO NA ZBOCZU_GRECJA
WNĘTRZA
ARANŻACJA GABINETU_LEGNICA
ŁAZIENKA W STYLU NOWOCZESNYM_GŁOGÓW
SALON Z ODROBINĄ ZIELENI
ARANŻACJA KAWALERKI_POZNAŃ
ŁAZIENKA
CENTRUM KULTURY W OBRZYCKU
BIBLIOTEKA MIEJSKA
TOALETA W PRZESTRZENI PUBLICZNEJ